 
        Η Μηλίνα είναι ένας παραδοσιακός πετρόχτιστος οικισμός, προορισμών παραθεριστών αλλά και τόπος κατοικίας των 700 μονίμων κατοίκων της. Βρίσκεται στο νοτιοανατολικό άκρο του Πηλίου, από την πλευρά του Παγασητικού κόλπου, απέναντι από το νησάκι Αλατάς και με πολλές άλλες στεριές τριγύρω, συνδυάζει τα θαλάσσια σπορ με την χαρές του βουνού.




Είναι ένας μικρός παράδεισος για κάθε είδους πλεούμενα που συναντούν στη ρότα τους γαλήνιες αμμουδιές, κρυμμένες σπηλιές και ερημονήσια με ξεχασμένα μοναστήρια. Τα τελευταία χρόνια η Μηλίνα είναι αγκυροβόλιο ιστιοπλοϊκών σκαφών απ’ όπου δεκάδες ιστιοφόρα ανοίγουν πανιά για τις ακτές του Παγασητικού, τη Σκιάθο, τη Σκόπελο, την Αλόννησο και την Εύβοια. Χωρίς υπερβολή, έχει ένα από τα ωραιότερα ηλιοβασιλέματα στην Ελλάδα.
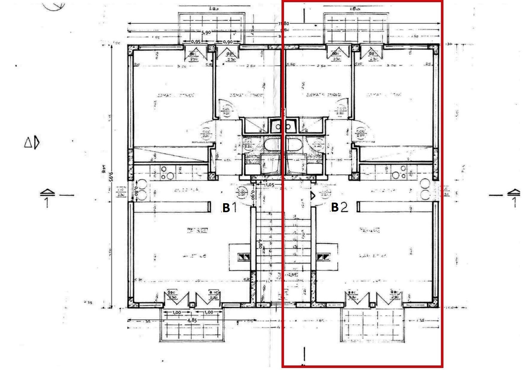
Στα 200μ από την παραλία διαθέτουμε προς πώληση Διαμέρισμα 54τμ, 1ου ορόφου. Η κατοικία έχει εξαιρετική διαρρύθμιση και στα λίγα τετραγωνικά της χωρούν άνετα δύο υπνοδωμάτια με μεγάλες ντουλάπες, μπάνιο με ντουζιέρα, και ένας ενιαίος χώρος διημέρευσης με κουζίνα, και τζάκι. Όλα τα δωμάτια διαθέτουν μπαλκονόπορτες με σήτες που χαρίζουν φως και βεράντες με θέα.


Πληροφορίες από το μεσιτικό γραφείο:
BOUGLA REAL ESTATE AND MORE
Ζάππα 20 & Ελ. Βενιζέλου, Τρίκαλα
Τηλέφωνα επικοινωνίας:
2431772913 / 6974760381
Υπεύθυνη γραφείου: Βίκυ Μπούγλα
Μεσίτης & εκτιμητής Ακινήτων, BBA, MSc

 
  
 


 
  
 


 
  
 
 
 

 
         
         
         
         
         
         
         
         
        